产品介绍
咨询服务热线:13957717877
产品概述
资料下载
相关产品
相关资讯


为什么选择GYM9-125DC 型直流款小型断路器? |
在直流配电系统中,可靠的过载与短路保护对设备安全与运行稳定性尤为重要。 GYM9-125DC 专为直流电路设计,具备较强的短路分断能力和良好的环境适应性,适用 于多种工业与通信场景,为用户提供稳定、安全的电路保护解决方案。 |
GYM9-125DC 型直流款小型断路器产品优势: |
1、高短路分断能力:采用强力永磁灭弧系统,短路分断能力达 10kA,有效遏制故障电 流。 |
2、使用寿命长:机械寿命达 20000 次以上,支持频繁操作,维护需求低。 |
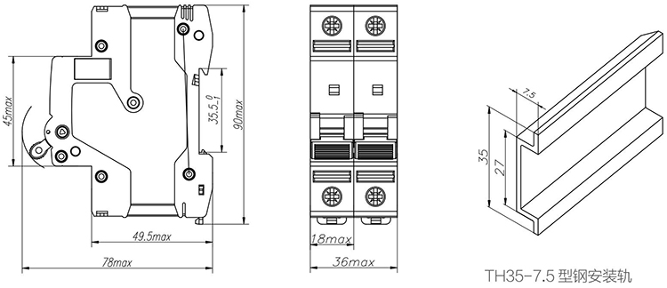
3、安装便捷:采用 TH35-7.5 标准钢安装轨,接线符合“上进下出”电源性特点,节 省布线时间与材料。 |
4、环境适应性强:可在 -5℃ 至 +40℃ 温度范围及海拔 2000m 以下环境中稳定工作。 |
5、符合标准:产品设计遵循 GB 及 IEC 相关标准,保障合规性与兼容性。 |
GYM9-125DC 型直流款小型断路器产品特点: |
1、结构组成包括外壳、操作机构、热脱扣器、电磁脱扣器、触头系统及灭弧系统,集成 过载与短路双重保护。 |
2、手柄位于前端面上方,操作手感舒适且安全,便于识别分合闸状态。 |
3、接线端明确标注“+”“-”性,支持螺钉压紧接线,连接牢固可靠。 |
4、污染等级为 2 级,安装类别支持 Ⅰ、Ⅲ 级,适用于多种电气环境。 |
5、外形美观,结构紧凑,适合各类配电箱与电控柜集成安装。 |
GYM9-125DC 型直流款小型断路器产品应用: |
本断路器适用于直流配电系统的过载与短路保护,常见于: |
1、电力系统中的直流屏、储能装置及光伏发电系统 |
2、邮电通信领域的直流供电设备与基站电源 |
3、交通运输中的直流控制与信号系统 |
4、工矿企业的直流电机、控制回路及照明电路 |

GYM9-125DC 型直流款小型断路器型号说明: |
|
GYM9-125DC 型直流款小型断路器产品接线: |
|
GYM9-125DC 型直流款小型断路器产品尺寸: |
|
GYM9-125DC 型直流款小型断路器技术参数: |
表一 | ||||||
壳架等级 额定电流 Inm(A) | Poles | 额定电压(V) | 额定电流In(A) | 额定限短路能力 | 瞬时脱扣电流 | |
| 分断电流Icu(A) | 时间常数T(ms) | |||||
| 63 | 1 | DC250V | 1、2、3、4、6、10、16、20、25、32、40、50、63 | 10000 | 10 | 8ln-12In |
2、3 | DC500V | |||||
4 | DC1000V | |||||
| 125 | 1 | DC250V | 80,100,125 | 10000 | 10 | 8ln-12In |
2、3 | DC500V | |||||
4 | DC1000V | |||||
标准时间-电流 | |||||
表2 | |||||
| 试验 | 直流试验电流 | 起始状态 | 脱扣或不脱 扣时间限 | 预期 结果 | 备注 |
| a | 1.05In | 冷态 | t≥1h(In≤63A) t≥2h(In>63A) | 不脱扣 | |
| b | 1.3In | 紧接着a项 试验 | t<2h(In>63A) t<1h(ln≤63A) | 脱扣 | 电流在5S内稳定 地上升至规定值 |
| C | 8ln | 冷态 | t≥0.2s | 不脱扣 | 闭合辅助开关 接通电源 |
| 12In | t<0.2s | 脱扣 | |||
上一个:GYM9-125型小型断路器
下一个:GYM9H系列高分断小型断路器
优惠券
我们的微信
13957717877
13957796089